Another form of shared living-space, based on a desire to interact with space and other humans as well as a curiosity about benefits of exploring different kinds of boundaries during studies at KTH.
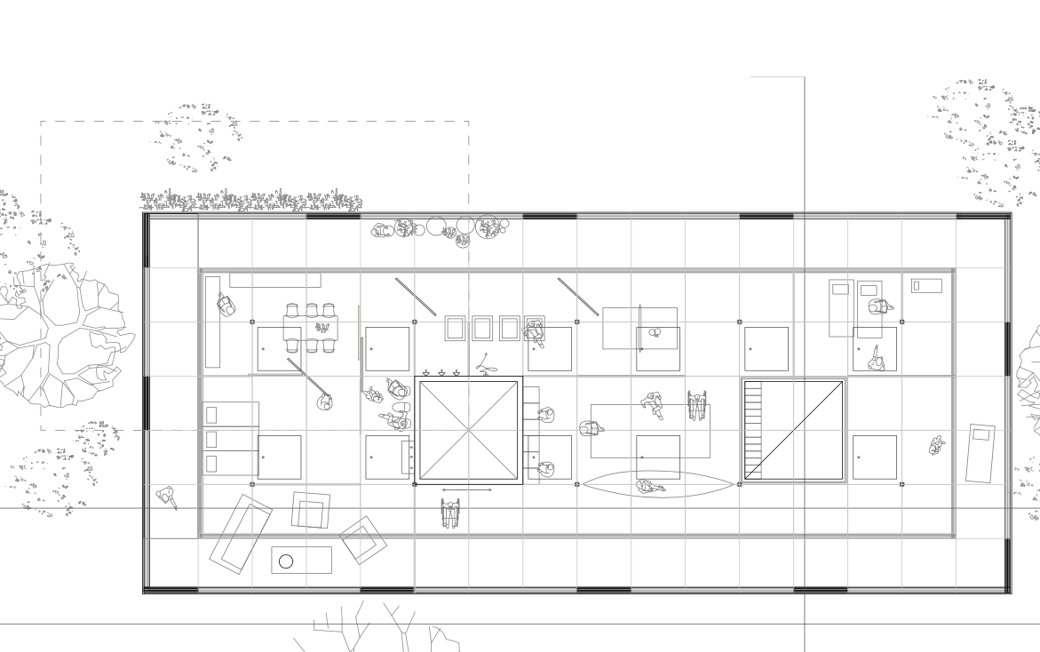
Possibilities can seem limited to what is offered. The built environment is not entirely inclusive. It is not neutral or without built-in prioritizations. The built environment is a frame for life, and says something about how we “should” live. Not everyone has a life that fits in it. Currently commonly reproduced housing-architecture enables certain and disagrees with other relationships, furniture, activities and schedules. With the conviction that it is our responsibility as architects to explore alternatives, this project tests a combination of spatial gestures, making up a starting-point for a new typology, hoping to allow:
-potential to respond to changing conditions + temporary circumstances
-conditions that encourage/facilitate interaction and negotiations (spatial, human-human & human-nature)
-possibility to share
-experienced capability to influence and interact with one’s situation/the built environment






